Übungspfad SD102K - metall
 
            
            
        
        Produktcode: SD-101KS-10
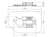
Übungspfad SD101K - metall, Fallhöhe 1 m, Als Fallschutzfläche genügt eine Grasfläche. Zur Auswahl stehen drei Farbvarianten der Konstruktion – Braun, Blau und Rot. Mehr Informationen
| Produktcode: | SD-101KS-10 | 
|---|---|
| Gewicht: | 405.11 kg | 
| Empfohlenes Alter: | 2-10 Jahre | 
| Freie Fallhöhe: | 1 m | 
| Max. Anzahl der Benutzer: | 13 | 
| Abmessungen: | 6,3 x 3,02 x 1,12 m | 
| Benötigte Raumfläche: | 9,3 x 6,1 m | 
| Fallschutzfläche: | Grasfläche | 
| Norm: | ČSN EN 1176-1 ed.2 +A1:2024 | 
Die Tragkonstruktion des Übungspfads besteht aus Konstruktionsstahl, die gegen Korrosion mit Zinkbeschichtung geschützt wird oder die Duplexbeschichtung mit Pulvereinbrennfarbe nach der RAL geschützt. Die Tragkonstruktion der Stepper besteht aus Konstruktionsstahl, die gegen Korrosion mit Zinkbeschichtung geschützt wird oder die Duplexbeschichtung mit Pulvereinbrennfarbe nach der RAL geschützt.
Diese Konstruktionen sind im Beton verankert. Die gesamten Metallelemente sind auch verzinkt oder die Duplexbeschichtung mit Pulvereinbrennfarbe nach der RAL geschützt. Die Seile und Netze sind aus Material HERKULES hergestellt (16 mm Seil aus Polypropylen mit einem inneren Stahlkern) und sind mit Kunststoff-Gelenken verbunden. Die Kriechtunnels werden aus Fiberglas hergestellt, der UV-beständig ist und der sich durch hohe Farbstabilität zeichnet. Die Stepperplatten bestehen aus hochwertigem HDPE-Kunststoff (durchgefärbtes Hochdruckpolyethylen, das sich durch hohe Farbstabilität, UV-Beständigkeit und vor allem Sicherheit zeichnet, weil es bruchfest ist und so droht es keine Verletzungsgefahr durch scharfe Bruchteile). Die Plattform bestehen aus HPL (Hochdruck Laminat, das sich durch hohe Farbstabilität, Kratzfestigkeit und Wasserbeständigkeit). Das gesamte Verbindungsmaterial ist verzinkt oder aus Edelstahl.
Zur Ware Übungspfad SD101KS - silber Es wurden noch keine Kommentare geschrieben. Schreiben Sie uns.
 Datenblatt [170 kB, PDF]
 Datenblatt [170 kB, PDF] Grundriss [101.0 kB, DWG]
 Grundriss [101.0 kB, DWG] Grundriss [57.0 kB, JPG]
 Grundriss [57.0 kB, JPG] 
            
            
        
         
            
            
        
         
            
            
        
        