Doppel-Zeichentafel TK200K - metall
 
            
            
        
        Produktcode: TK-200D-10
Doppel-Zeichentafel TK200D - Als Fallschutzfläche genügt eine Grasfläche. Mehr Informationen
| Produktcode: | TK-200D-10 | 
|---|---|
| Gewicht: | 57.71 kg | 
| Empfohlenes Alter: | 0+ Jahre | 
| Freie Fallhöhe: | 0 m | 
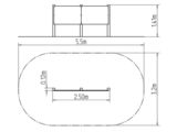
| Abmessungen: | 2,5 x 0,12 x 1,41 m | 
| Benötigte Raumfläche: | 5,5 x 3,2 m | 
| Fallschutzfläche: | Grasfläche | 
| Norm: | ČSN EN 1176-1 ed.2 +A1:2024 | 
Die Tragkonstruktion der Zeichentafel besteht aus Leimbalken. Dies bietet maximalen Schutz gegen Rissbildung im Holz. Die Oberflächenbehandlung besteht in Tiefenimprägnierung und 3-Schichten Lackbehandlung, die die Anforderungen der Norm EN 71/3 erfüllen (Sicherheit von Spielzeug).
Diese Konstruktionen werden im Terrain durch feuerverzinkte Stahlpfostenträger verankert, durch Schrauben mit dem Spielelement verbunden und anschließend im Beton befestigt. Somit wird der direkte Kontakt des Holzes mit dem Boden vermieden. Die Abdeckungen der Tragkonstruktion bestehen aus Metall oder die Duplexbeschichtung mit Pulvereinbrennfarbe nach der RAL geschützt Die Malfläche besteht aus witterungsbeständigem Sperrholz. Sämtliche Verbindungselemente sind verzinkt oder aus Edelstahl.
Zur Ware Doppel-Zeichentafel TK200D Es wurden noch keine Kommentare geschrieben. Schreiben Sie uns.
 Datenblatt [170 kB, PDF]
 Datenblatt [170 kB, PDF] Grundriss [18.0 kB, DWG]
 Grundriss [18.0 kB, DWG] Grundriss [35.0 kB, JPG]
 Grundriss [35.0 kB, JPG] 
            
            
        
         
            
            
        
        